Описание котла
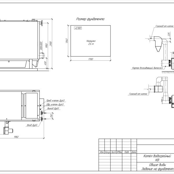
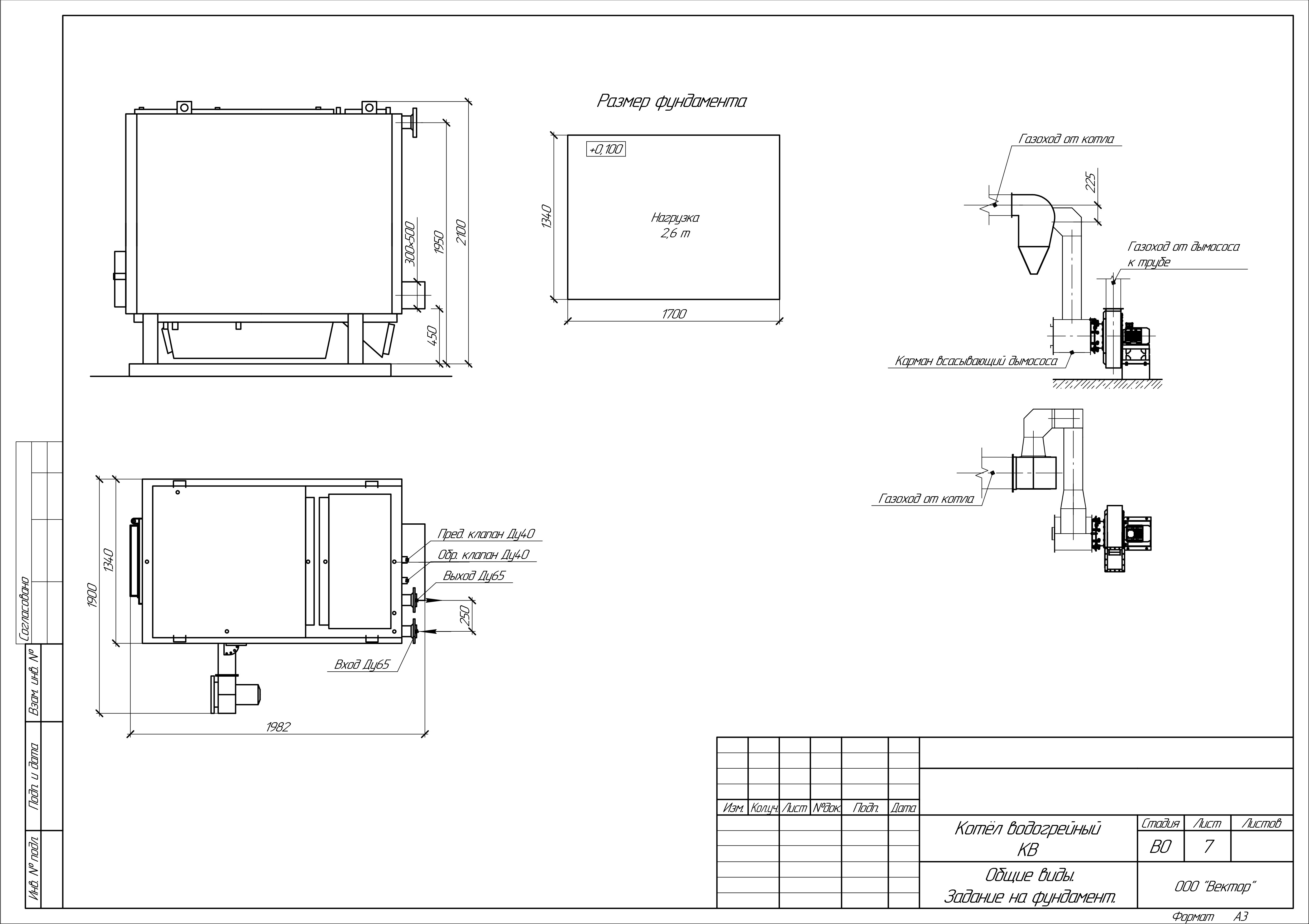
Водогрейный котел КВр-0,4 – это агрегат с ручной системой топливоподачи и шлакоудаления, работающий на твердом топливе – каменном и буром угле. Состоит из блока котла – сварной трубной системы – и колосниковой топки (колосники). Используется для отопления и горячего водоснабжения жилых, административных и производственных зданий. Максимальная температура нагрева жидкости в котлах на угле достигает 115 °С. Устанавливается в котельную 0,4 МВт и котельную 0,8 МВт.
Мощная – 400 кВт (0,4 МВт) – «начинка» котла КВр заключена в окрашенный металлический корпус. Покрытие (краска) защищает от коррозии и механических повреждений. Газоплотные и негазоплотные части котельного блока, чтобы сократить теплопотери, обшиты теплоизоляционным материалом: плитами ПТЭ и войлоком.
Для установки твердотопливного котла требуется совсем мало места – габаритные размеры по длине, ширине и высоте: 2,05х1,35х2,1 м. При этом отапливаемая площадь достаточно большая – 4000 м². Агрегат компактен, безопасен и прост в эксплуатации. Котел КВр-0,4 легко обслуживается одним оператором – кочегаром: расход угля небольшой – 86 кг/ч. Удобно расположенная дверка топочной камеры колосникового котла облегчает загрузку топлива.
При должном соблюдении правил использования, а это своевременная очистка топки от шлака, можно забыть о поломках и снижении производительности отопительного котла КВр, что дает срок службы не менее 10 лет.
Более подробную информацию Вы можете получить у наших специалистов. Чтобы купить отопительный водогрейный угольный котел КВр-0,4 с колосниками мощностью 400 кВт (0,4 МВт), достаточно позвонить нам либо оставить заявку и мы обязательно с Вами свяжемся.

